RENOVATION & EXTENSION
EXTENSION

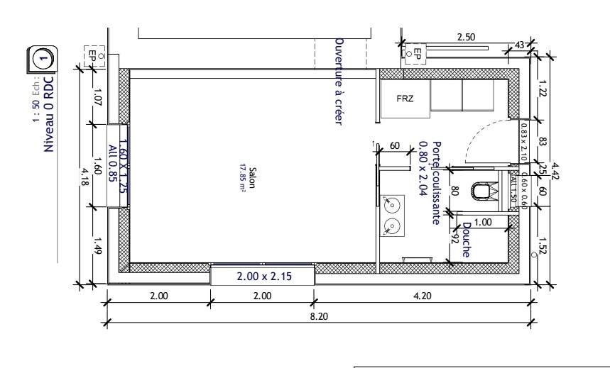
Quelque photos du projet d’une extension terminé à edern (Avant/Après) Mars 2025
Dimension : 000 m2
Construction brique

Quelque photos du projet d’une extension terminé à edern (Avant/Après) Mars 2025
Dimension : 000 m2
Construction brique
Nous utilisons des cookies pour améliorer votre expérience sur notre site. En utilisant notre site, vous acceptez notre utilisation des 🍪 cookies.
Les sites web stockent des cookies pour améliorer leur fonctionnement et personnaliser votre expérience. Vous pouvez gérer vos préférences, mais le blocage de certains cookies peut affecter les performances du site et les services proposés.
Les cookies essentiels permettent les fonctions de base et sont nécessaires au bon fonctionnement du site.
Google reCAPTCHA helps protect websites from spam and abuse by verifying user interactions through challenges.
Les cookies de statistiques recueillent des informations de manière anonyme. Ces données nous aident à comprendre comment les visiteurs utilisent notre site.
Google Analytics is a powerful tool that tracks and analyzes website traffic for informed marketing decisions.
Service URL: policies.google.com (opens in a new window)
Les cookies publicitaires servent à suivre les visiteurs sur les sites web afin d'afficher des publicités pertinentes et adaptées à chaque utilisateur.
Google Maps is a web mapping service providing satellite imagery, real-time navigation, and location-based information.
Service URL: policies.google.com (opens in a new window)
Vous trouverez plus d'informations sur notre page Politique de confidentialité et cookies.




